698 Westside Drive
Contact
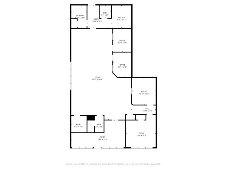
Medical office space is in short supply in Durant, making this 2,218 SF opportunity at 698 Westside Drive especially compelling. Positioned within the West Retail District along one of the city’s highest traffic corridors, this location provides both visibility and accessibility for patients and providers alike. The space offers an efficient layout suitable for a variety of healthcare and professional office users, with strong surrounding demographics and stable household incomes within a 1, 3, and 5 mile radius.
Durant continues to be one of the fastest growing communities in Oklahoma, fueled by the regional draw of Choctaw Nation and Choctaw Casino & Resort, Southeastern Oklahoma State University, and sustained retail and commercial expansion. The Westside corridor benefits from established national retailers, healthcare services, and daily traffic generated by Highway 75 and University Boulevard. This synergy creates a built-in patient base and long-term stability for medical users seeking both growth and permanence in the market.
- 2,218 Medical Office Space
- Premier Westside Corridor Location
- Strong Traffic Counts
- Established Retail & Service Synergy
- Medical Co-Tenancy Environment
- Serving One of Oklahoma's Fastest Growing Communities



